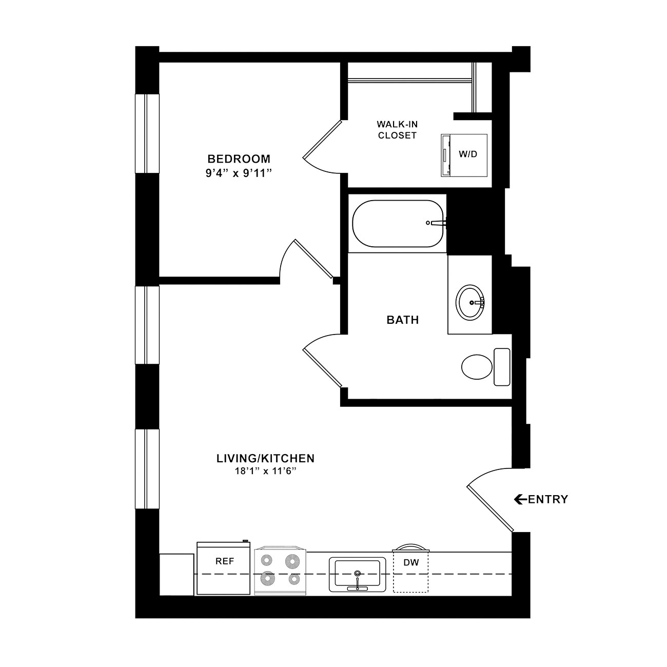
Orpheum – O-A6 (O-A6) Images: By propeditor|2023-09-01T08:05:29-05:00April 22nd, 2022|Comments Off on Orpheum – O-A6 (O-A6) About the Author: propeditor